Kies je categorie
Product beschrijving
Dit CE gecertificeerde DX veiligheidsheidsscharnier is door zijn geïntegreerde dievenklauw door het SKG gekeurd en bestempeld als inbraakwerend en daarmee geschikt voor buitendeuren en ramen die intensief gebruikt worden. Dit product voldoet bovendien aan alle eisen om binnen het Politie Keurmerk Veilig Wonen (PKVW) toegepast te worden.

Door zijn rechte hoeken is het scharnier bedoeld voor handmatige verwerking. Om het scharnier in te laten en te bevestigen kan gemakkelijk met hamer en beitel de uitsparing in deur/raam en kozijn gemaakt worden.

Aan de onderkant is een scharnierknop bevestigd met daarin een gaatje. Allereerst verrijkt de scharnierknop het uiterlijk doordat boven- en onderkant nu identiek ogen. Daarnaast is er met het aangebrachte gaatje voor gezorgd dat demonteren, bijvoorbeeld wanneer u gaat schilderen, eenvoudig blijft. U slaat de bovenste pen door het gaatje gemakkelijk met een spijker omhoog. De scharnierknop en de pen zijn bovendien voorzien van een kartelrand, die voorkomt dat de scharnierknop of de pen na verloop van tijd uit het scharnier kruipt en er tevens voor zorgt dat het scharnier minder gauw scheef gaat hangen.

Door de kogellagers loopt dit scharnier bijzonder soepel, wat de draagkracht en levensduur ten opzichte van een losse pen scharnier ten goede komt. Om de hoge kwaliteit van dit scharnier langere tijd te waarborgen wordt aangeraden de lagers jaarlijks te smeren met kogellagervet, zuurvrije vaseline of spray op siliconenbasis.

Bent u op zoek naar een onderhoudsvrij scharnier met SKG keurmerk en nog meer draagvermogen? Bekijk dan ook ons assortiment glijlagerscharnieren of kogelstiftpaumelles.
Product specificaties
Attribuut naam Attribuut waarde
draagvermogen (per 4 stuks) 0 - 80
draagvermogen (per 3 stuks) 0 - 70
keurmerk SKG***
bewerking (fabricage, afwerking) blank, verzinkt
model rechte hoek(en)
bewerking (oppervlaktebehandeling) verzinkt
materiaal staal
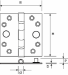
dikte 2,4
hoogte 89
breedte 89
model (lager) kogellager

Kogellagerscharnier / rechte hoeken / 89x89 m

DX
Fabrikant: DX
EAN-nummer: 8714140142262
Artikelnummer: 1439120
Artikelnummer fabrikant: 6212.125.8989
€ 6,36 incl. BTW
Prijs per stuk van 1 stuk(s)
Online voorraad: 19 op voorraad
Leveringsdatum Vóór 16:00 besteld = vandaag verstuurd
Winkelvoorraad
Af te halen voorraad per filiaal
Dedemsvaart TEST
Galileistraat 7 , 7701 SK Dedemsvaart
19 Stuks Op voorraad
Coevorden TEST
Monierweg 6 , 7741 KT Coevorden
13 Stuks Op voorraad
Coevorden TEST
Monierweg 6 , 7741 KT Coevorden
13 Stuks Op voorraad
Winkelvoorraad
Af te halen voorraad per filiaal
Dedemsvaart TEST
Galileistraat 7 , 7701 SK Dedemsvaart
19 Stuks Op voorraad
Coevorden TEST
Monierweg 6 , 7741 KT Coevorden
13 Stuks Op voorraad
Coevorden TEST
Monierweg 6 , 7741 KT Coevorden
13 Stuks Op voorraad
Product specificaties
Attribuut naam Attribuut waarde
draagvermogen (per 4 stuks) 0 - 80
draagvermogen (per 3 stuks) 0 - 70
keurmerk SKG***
bewerking (fabricage, afwerking) blank, verzinkt
model rechte hoek(en)
bewerking (oppervlaktebehandeling) verzinkt
materiaal staal
dikte 2,4
hoogte 89
breedte 89
model (lager) kogellager